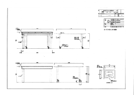
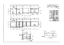
リビング・ダイニングの造作家具 ダイニングテーブル、 |
プライベートルームの家具 ベッド |
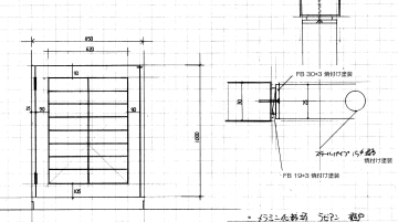
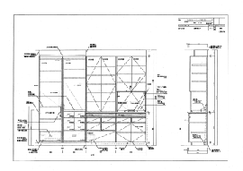
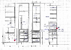
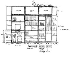
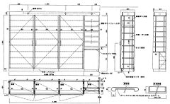
収納 クローゼットのオーダー家具 クローゼット |
子供部屋の造作家具 2段ベッド |
家事空間の造作家具 家事机 |
書斎の造作家具 書斎机 |
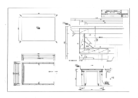
サニタリーの造作家具 洗面台 |
オーディオ関連の造作家具 CD LP収納 |
ペットのための造作家具 ペットデザイナー仏壇 |
玄関の造作家具 下足箱 |
その他の造作家具 ニッチ収納 |
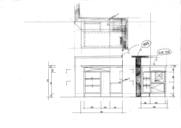
商業施設の造作家具 カウンター |
オーダーでつくる小型家具仏壇
|
![]() メールでのオーダー家具の |


オーダー造作家具の魅力 ~just fit space~
日本人は家具のある生活に慣れていないとよく言われます。
1部屋を食堂や寝室に変化させて生活する歴史が長かったからでしょうか。
現代の快適な生活のために 上手な家具との付き合い方が
必要ではないかと考えています。
大きすぎたり小さすぎたりするテーブル、慢性的に不足しがちな収納スペース、インテリアとちぐはぐな色や形・・・。
そんなふうに感じていたら オーダー造作家具の出番です。
空間にこだわって 造り付けるジャストフィット家具
快適で美しい空間造りができること それが オーダー造作家具の魅力です。
アステップがお手伝いさせていただいた オーダー造作家具で生まれた
快適空間をご覧ください。
デザインスタジオ アステップ
株式会社 アステップ建築研究所
出雲 勝一(いずも かついち)

アステップデザインのオーダー家具ニュース
2020-08
シンプルTV台
背面をフルオープンにして 配線をしやすく工夫
大きさに合わせて厚みをしっかりめに構成しました
全面化粧で サイドテーブルとしても使えます

[2020.07]
-超ワイド ミニカーコレクションケース試作2台
1・18サイズのミニカーを長さ1800の長さでディスプレイ
[2010.10]
-無垢の1枚板を使ったTV台 1800×455製作中です。


[2010.
-ペット用 間仕切り可動扉 800×1000相談受付中です。
ペットの部屋とリビングを仕切るシンプルドアのご相談をいただいています。

[2010.09]
-大阪 Oさんの PCテーブル 1050×600完成しました。
マンションのリビングで家族みんなが使えるPCコーナーをつくるご相談をいただきました、配線も機器もすっきり収納できました。


[2010.08]
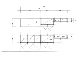
-箕面 Nさんの オーダーテーブル1600×1600完成しました。
ゆったりリビングのリフォームの第1歩 たくさんで食事できるビッグダイニングテーブルをアイカバリューエッジで製作中です


[2010.09]
-滋賀 Yさんの オーダー収納と
スライディングダイニングテーブル製作中です。
パンをこねるための作業台を人工大理石で内部に既存のテーブルをスライドで仕込みます。食器棚はスチーマーやオーブンをビルトインしてすっきり収納の完成です。






[2010.08]
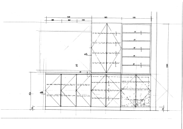
-大阪 Tさんの オーダー収納完成しました。
子供さんの独立を機会に家の中をすっきりとリフォーム中のTさん、ペットの犬のことも配慮してメラミン化粧板で壁面収納です。




━━━イメージが現実に1歩近づきます
- 内容がOKであれば 正式発注です。オーダーという性質上先行してお支払いをお願いすることになります。そして私たちは製作へ向けた準備 工場や職方との打ち合わせに入ります。現地の確認採寸なども家具により必要になります。
- オーダー家具でも置き家具と部屋に造り付ける造作家具に大別できますが造作家具については職方により据付工事が必要になります。
- こうして オンリーワンのインテリアが完成するのです。.
家具の内容により 少し流れが違うケースがあります。まずはお気軽にお問い合わせください。




実例はこちら
実例はこちら
実例はこちら
実例はこちら
実例はこちら
実例はこちら
実例はこちら
実例はこちら
実例はこちら
実例はこちら
実例はこちら
実例はこちら
実例はこちら







メールでのお問い合わせ
トップページ
加古川ブロッサムBグリーン
プレスクールかみごおり 別棟 遊戯室